Plano de lo que será el Centro de Servicios Sociales de Benaguasil. / EPDA La Vicepresidencia Primera y Conselleria de Servicios Sociales, Igualdad y Vivienda de la Generalitat Valenciana ha concedido al Ayuntamiento de Benaguasil una subvención de 683.932,00 euros destinada a la rehabilitación de las Antiguas Escuelas Sagrada Familia, edificio que será adaptado para acoger las dependencias municipales del área de Bienestar Social.
Esta ayuda, que corresponde al 100% de la financiación de las obras de rehabilitación y construcción, permitirá transformar este espacio emblemático en un nuevo centro destinado a servicios sociales, contribuyendo así al bienestar de la ciudadanía y a la mejora de la atención social en el municipio.
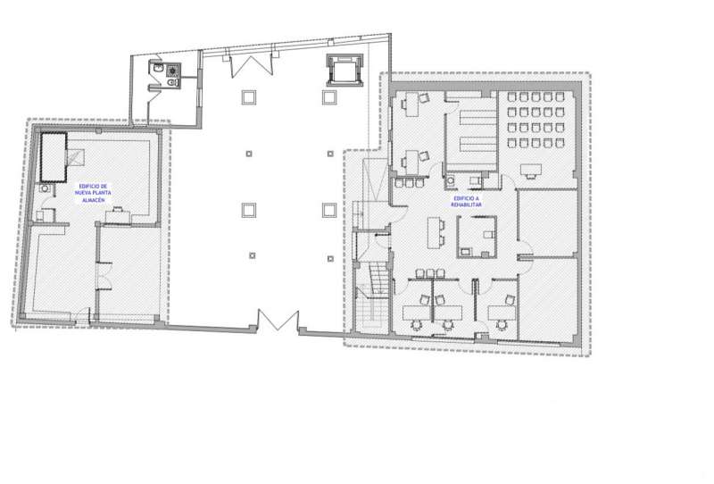
El colegio de la Sagrada Familia, situado en la calle Fray Luis Amigó, es un edificio de dos plantas y una superficie de 800 metros cuadrados, ubicado en suelo urbano dentro del casco histórico del municipio. La actuación incluirá la rehabilitación integral del inmueble y la adecuación de la parcela anexa, con el objetivo de darle un uso público y social.
Desde el Ayuntamiento se ha destacado que esta inversión responde a la estrategia municipal de recuperar edificios históricos para dotarlos de nuevos usos que favorezcan la cohesión social. El inmueble se destinará para las dependencias de los Servicios de Sociales municipales y contará con: despachos, zonas de espera, salas de reunión, espacios de atención, salón de actos, espacio de recepción y de administración, sala de archivo, aulas, sala multiusos, sala intervenciones familiares y lavabos.
El Ayuntamiento de Benaguasil ha expresado su satisfacción por la concesión de esta subvención, destacando que “es una excelente noticia para el municipio, ya que permitirá poner en valor un edificio emblemático y convertirlo en un espacio al servicio de las personas. Este proyecto refuerza nuestro compromiso con las políticas sociales y la mejora de la calidad de vida de nuestros vecinos y vecinas”.
Con esta actuación, Benaguasil continúa avanzando en su apuesta por la modernización de los servicios públicos y la recuperación del patrimonio local.
Comparte la noticia
Categorías de la noticia